- Động cơ đồng với vòng bi chất lượng cao, giúp tiết kiệm năng lượng.
- Hoạt động ổn định, độ ồn thấp.
- Lõi trao đổi nhiệt toàn diện.
- Thiết kế tinh tế, đẹp mắt, dễ dàng lắp đặt và bảo trì.
BẢN VẼ KĨ THUẬT:
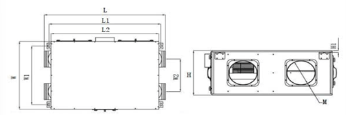
Lưu lượng 1000-2500 m3/h

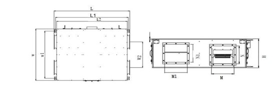
Lưu lượng 3000-12000 m3/h
KÍCH THƯỚC KĨ THUẬT:

Lưu lượng 3000-12000 m3/h
KÍCH THƯỚC KĨ THUẬT:
| Model | L | L1 | L2 | W | W1 | W2 | H | H1 | M | M*N | M1*N1 |
| NH-1000C | 1255 | 1156 | 1116 | 832 | 719 | 400 | 365 | 15 | 200 | - | - |
| NH-1500C | 1255 | 1156 | 1116 | 832 | 719 | 400 | 365 | 15 | 250 | - | - |
| NH-2000C | 1299 | 1200 | 1160 | 832 | 734 | 400 | 380 | 15 | 250 | - | - |
| NH-2500C | 1478 | 1379 | 1338 | 975 | 877 | 485 | 421 | 15 | 250 | - | - |
| NH-3000C | 1452 | 1395 | 1355 | 1185 | 1087 | 590 | 440 | 15 | - | 335*320 | 430*312 |
| NH-4000C | 1452 | 1395 | 1355 | 1185 | 1087 | 590 | 440 | 15 | - | 335*320 | 430*312 |
| NH-5000C | 2009 | 1757 | 1912 | 1201 | 1321 | 536 | 730 | 130 | - | 400*460 | 400*460 |
| NH-6000C | 2009 | 1757 | 1912 | 1201 | 1321 | 536 | 730 | 130 | - | 400*460 | 400*460 |
| NH-8000C | 2009 | 1757 | 1912 | 1201 | 1321 | 536 | 795 | 130 | - | 440*460 | 440*460 |
| NH-10000C | 2109 | 1857 | 2012 | 1201 | 1321 | 597 | 867 | 150 | - | 455*460 | 460*550 |
| NH-12000C | 2109 | 1857 | 2012 | 1301 | 1421 | 647 | 917 | 150 | - | 455*460 | 560*600 |
